DIPL.-ING. ROLAND MURSCHALL
Architekt und Sachverständiger
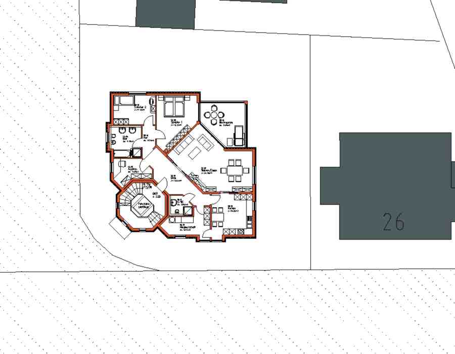
SKIZZE
ROONSTR. 28
Bad Salzuflen
Vorentwurf
Grundriss Obergeschoss
START
ARCHITEKT
SACHVERSTÄNDIGER
PROJEKTE
KONTAKT
IMPRESSUM