DIPL.-ING. ROLAND MURSCHALL
Architekt und Sachverständiger
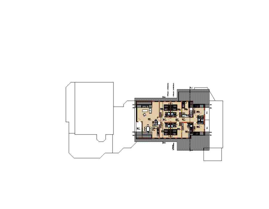
SKIZZEN
WIETZEND. WEG 19
MÜDEN / ÖRTZE
Vorentwurf
Dachgeschoss
START
ARCHITEKT
SACHVERSTÄNDIGER
PROJEKTE
KONTAKT
IMPRESSUM