DIPL.-ING. ROLAND MURSCHALL
Architekt und Sachverständiger
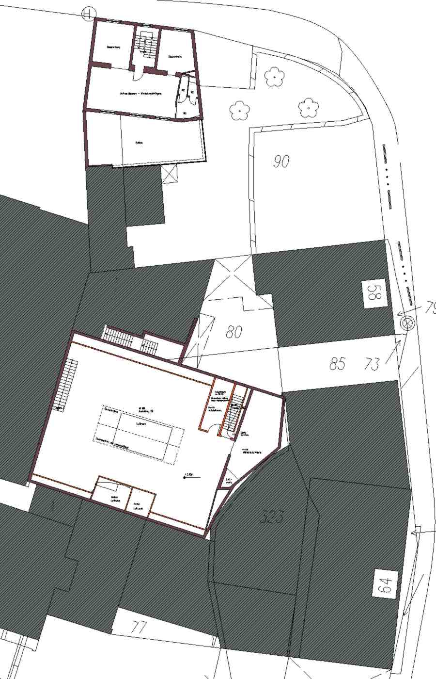
SKIZZEN
BENDAHLER STR. 60
WUPPERTAL
Grundriss
Erdgeschoss
START
ARCHITEKT
SACHVERSTÄNDIGER
PROJEKTE
KONTAKT
IMPRESSUM