DIPL.-ING. ROLAND MURSCHALL
Architekt und Sachverständiger
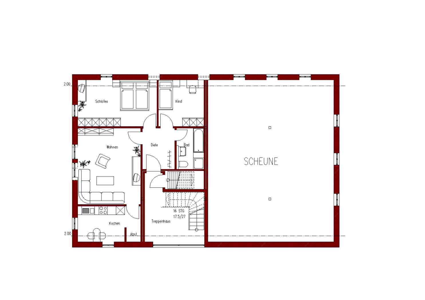
SKIZZE
ZUM HEIMATHOF 11B
LEOPOLDSHÖHE
Vorentwurf
Obergeschoss
START
ARCHITEKT
SACHVERSTÄNDIGER
PROJEKTE
KONTAKT
IMPRESSUM