DIPL.-ING. ROLAND MURSCHALL
Architekt und Sachverständiger
GALERIE
OLDERNHOLZ 6
BIELEFELD
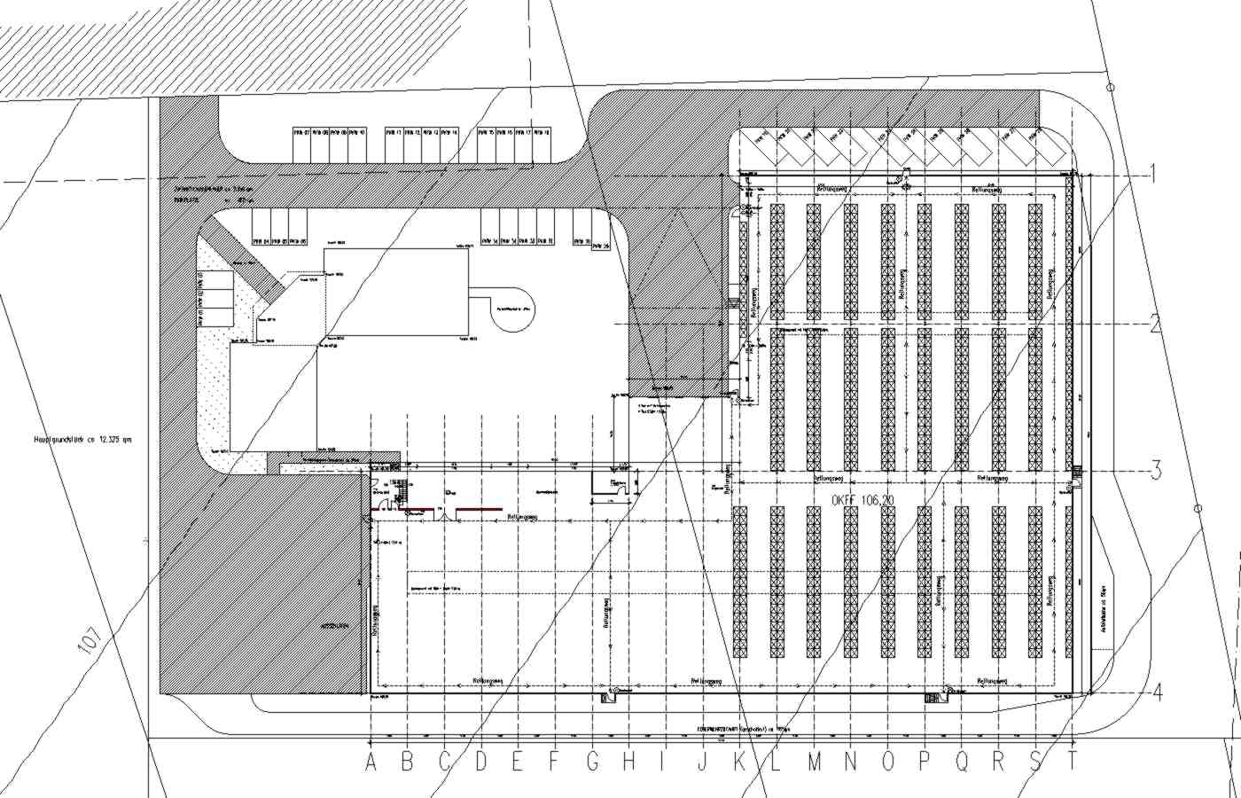
Gesamtanlage
START
ARCHITEKT
SACHVERSTÄNDIGER
PROJEKTE
KONTAKT
IMPRESSUM